Skip To Content

5150 Colchester Court , #69

Catawba, NC 28609
  • $446,200
  • STATUS: Active
  • ON SITE: 20 Days
  • ID#: 4331138
UPDATED: 31 min ago
$446,200
  • 4
    BEDS
  • 1.5
    ACRES
  • 3
    BATHS
  • 0
    1/2 BATHS
  • 2,604
    SQFT
  • $171
    $/SQFT
Neighborhood:
Type:
Single-Family Home
Built:
2026
County:
Area:

School Information

Elementary School:
Middle School:
High School:
Canopy MLS logo Offered by Adams Homes Realty-NC, Inc.: 704-558-4527. Copyright 2026 Canopy MLS. All rights reserved.

Description

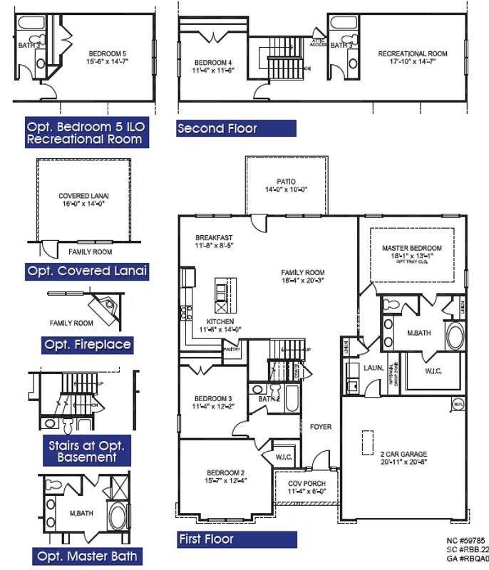
UNDER CONSTRUCTION with an approximate completion date of April 2026. This stunning 1.5-story, 2,604 sq ft floor plan is packed with upgrades and thoughtful design. With 9-foot ceilings throughout the main level, the home offers a spacious and open feel from the moment you walk in.The primary suite is conveniently located on the main floor and features a tray ceiling, luxurious en-suite bathroom with a tiled walk-in shower, and a built-in bench. The gourmet kitchen serves as the heart of the home, boasting upgraded appliances and an ideal layout for cooking and entertaining. You'll find additional bedrooms on the main level, with a flex space and large recreational area upstairs—perfect for a home office, media room, or playroom. Step outside on to your covered 16x14 back deck and enjoy the outdoor living area. Up to $5000 is available to use towards upgrades or options. Standard closing costs are paid by the seller with the use of one of our 4 preferred lenders. The builder welcomes Buyers Agents. Photos are representative and may reflect a staged home.

Monthly Payment Calculator



MLS Grid logo Based on information submitted to the MLS GRID as of 2026-01-13T22:33:24.313 UTC. All data is obtained from various sources and may not have been verified by broker or MLS GRID. Supplied Open House Information is subject to change without notice. All information should be independently reviewed and verified for accuracy. Properties may or may not be listed by the office/agent presenting the information.The data relating to real estate on this Web site derive in part from the Canopy MLS IDX program. Brokers make an effort to deliver accurate information, but buyers should independently verify any information on which they will rely in a transaction. All properties are subject to prior sale, change or withdrawal. Neither Nexus Realty nor any listing broker shall be responsible for any typographical errors, misinformation, or misprints, and they shall be held totally harmless from any damages arising from reliance upon this data. This data is provided exclusively for consumers' personal, non-commercial use and may not be used for any purpose other than to identify prospective properties they may be interested in purchasing. © 2026 Canopy MLS.

“Listings courtesy of Canopy MLS as distributed by MLS GRID

Some IDX listings have been excluded from this website.

Digital Millennium Copyright Act
www.nexusrealtync.com/homes/171551277
Print Image

5150 Colchester Court , #69 Catawba, NC 28609

  • Price: $446,200
  • Status: Active
  • On Site: 20 Days
  • Updated: 31 min ago
  • ID#: 4331138
4
Beds
3
Baths
0
½ Baths
1.5
Acres
2,604
SQFT
$171
$/SQFT
2026
Built
Neighborhood:
Cardiff Glyn
County:
Catawba
Area:
Catawba
Elementary School:
Catawba
Middle School:
Mill Creek
High School:
Bandys
Property Description
UNDER CONSTRUCTION with an approximate completion date of April 2026. This stunning 1.5-story, 2,604 sq ft floor plan is packed with upgrades and thoughtful design. With 9-foot ceilings throughout the main level, the home offers a spacious and open feel from the moment you walk in.The primary suite is conveniently located on the main floor and features a tray ceiling, luxurious en-suite bathroom with a tiled walk-in shower, and a built-in bench. The gourmet kitchen serves as the heart of the home, boasting upgraded appliances and an ideal layout for cooking and entertaining. You'll find additional bedrooms on the main level, with a flex space and large recreational area upstairs—perfect for a home office, media room, or playroom. Step outside on to your covered 16x14 back deck and enjoy the outdoor living area. Up to $5000 is available to use towards upgrades or options. Standard closing costs are paid by the seller with the use of one of our 4 preferred lenders. The builder welcomes Buyers Agents. Photos are representative and may reflect a staged home.
Exterior Features

Carport YN No Construction Materials Stone VeneerVinyl Construction Type Site Built Foundation Details Crawl Space Garage YN Yes Levels One and One Half Lot Features Cul-De-Sac Main Level Garage YN Yes Parking Features Attached GarageGarage Door OpenerGarage Faces Front Patio And Porch Features CoveredDeckFront PorchRear Porch Road Responsibility Publicly Maintained Road Road Surface Type ConcretePaved Roof Architectural Shingle Window Features Insulated Window(s)

Interior Features

Above Grade Finished Area 2604 Appliances DishwasherDisposalElectric RangeElectric Water HeaterMicrowavePlumbed For Ice Maker Basement Partially Finished Basement YN No Below Grade Finished Area 0 Cooling Ceiling Fan(s)Central AirElectric Door Features Insulated Door(s) Fireplace YN Yes Flooring CarpetLaminateVinyl Garage Spaces 2 Heating ElectricForced AirHeat Pump Interior Features Attic Stairs PulldownAttic Walk InBreakfast BarEntrance FoyerKitchen IslandOpen FloorplanPantrySplit BedroomStorageWalk-In Closet(s)Walk-In Pantry Laundry Features Laundry RoomMain Level Lower Square Feet 0 Main Square Feet 1902 Rooms Main (Primary Bedroom) Main (Bedroom(s)) Main (Bedroom(s)) Main (Bathroom-Full) Main (Bathroom-Full) Upper (Bathroom-Full) Main (Kitchen) Main (Living Room) Main (Dining Area) Main (Laundry) Upper (Flex Space) Upper (Bedroom(s)) Sq Ft Unheated Total 0 Sq Ft Upper 702 Third Square Feet 0

Property Features

Additional Parcels YN False Association Annual Expense 400.00 Association Fee 400 Association Fee Frequency Annually Association YN Yes Assumable YN No Auction YN No Builder Name Adams Homes CCRSubject To Yes City Taxes Paid To No City Taxes Paid Construction Status Under Construction Hoa Subject To Required HOASubject To Dues Mandatory Listing Terms CashConventionalFHAUSDA LoanVA Loan Model 2604A New Construction YN Yes Property Sub Type Single Family Residence Proposed Completion Date 2026-04-30 Security Features Carbon Monoxide Detector(s)Smoke Detector(s) Senior Community YN No Sewer Septic Installed Special Listing Conditions None Water Source County Water



MLS Grid logo Based on information submitted to the MLS GRID as of 2026-01-13T22:33:24.313 UTC. All data is obtained from various sources and may not have been verified by broker or MLS GRID. Supplied Open House Information is subject to change without notice. All information should be independently reviewed and verified for accuracy. Properties may or may not be listed by the office/agent presenting the information.The data relating to real estate on this Web site derive in part from the Canopy MLS IDX program. Brokers make an effort to deliver accurate information, but buyers should independently verify any information on which they will rely in a transaction. All properties are subject to prior sale, change or withdrawal. Neither Nexus Realty nor any listing broker shall be responsible for any typographical errors, misinformation, or misprints, and they shall be held totally harmless from any damages arising from reliance upon this data. This data is provided exclusively for consumers' personal, non-commercial use and may not be used for any purpose other than to identify prospective properties they may be interested in purchasing. © 2026 Canopy MLS.

“Listings courtesy of Canopy MLS as distributed by MLS GRID

Some IDX listings have been excluded from this website.

Digital Millennium Copyright Act
 
https://bt-photos.global.ssl.fastly.net/cmls/orig_boomver_1_4331138-1.jpg https://bt-photos.global.ssl.fastly.net/cmls/orig_boomver_1_4331138-1.jpg https://bt-photos.global.ssl.fastly.net/cmls/orig_boomver_1_4331138-1.jpg
Logo
Nexus Realty
100 Julian Shoals Drive
Arden NC, 28704
Canopy MLS logo Offered by Adams Homes Realty-NC, Inc.: 704-558-4527. Copyright 2026 Canopy MLS. All rights reserved.